Full Description
Positioned within a professionally managed hillside estate between Kata and Kata Noi, this three-storey pool villa occupies a substantial 1,747 sqm land plot and offers a total built-up area of approximately 617.5 sqm. The setting combines elevated coastal views with mature tropical landscaping in one of southern Phuket’s most established residential communities.
The villa provides approximately 353 sqm of interior living space arranged across three levels. Entry is via the middle floor, where an open-plan living, dining, and kitchen area forms the central hub of the home. This level also includes one bedroom with ensuite bathroom, allowing convenient single-level living when required.
Both internal and external staircases connect the floors. The lower level includes a further ensuite bedroom, a maid’s room with its own bathroom, along with a pump room and storage areas. The upper level accommodates the third bedroom, also with a private ensuite, creating separation and privacy between sleeping areas.
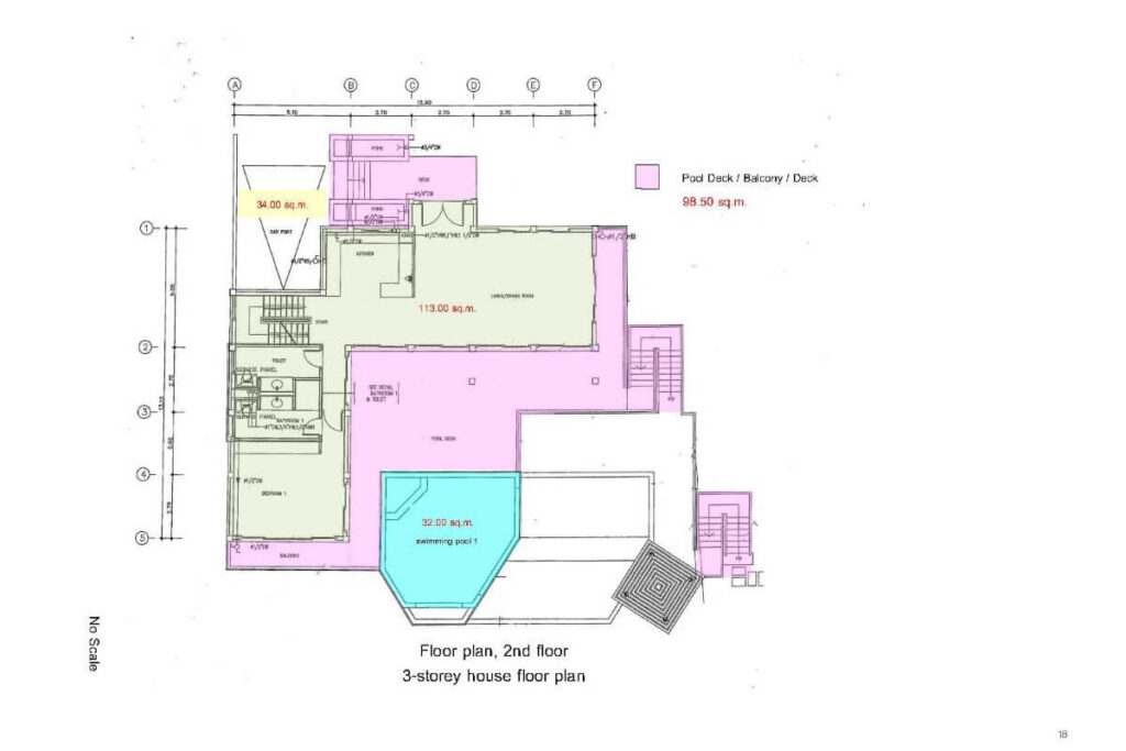
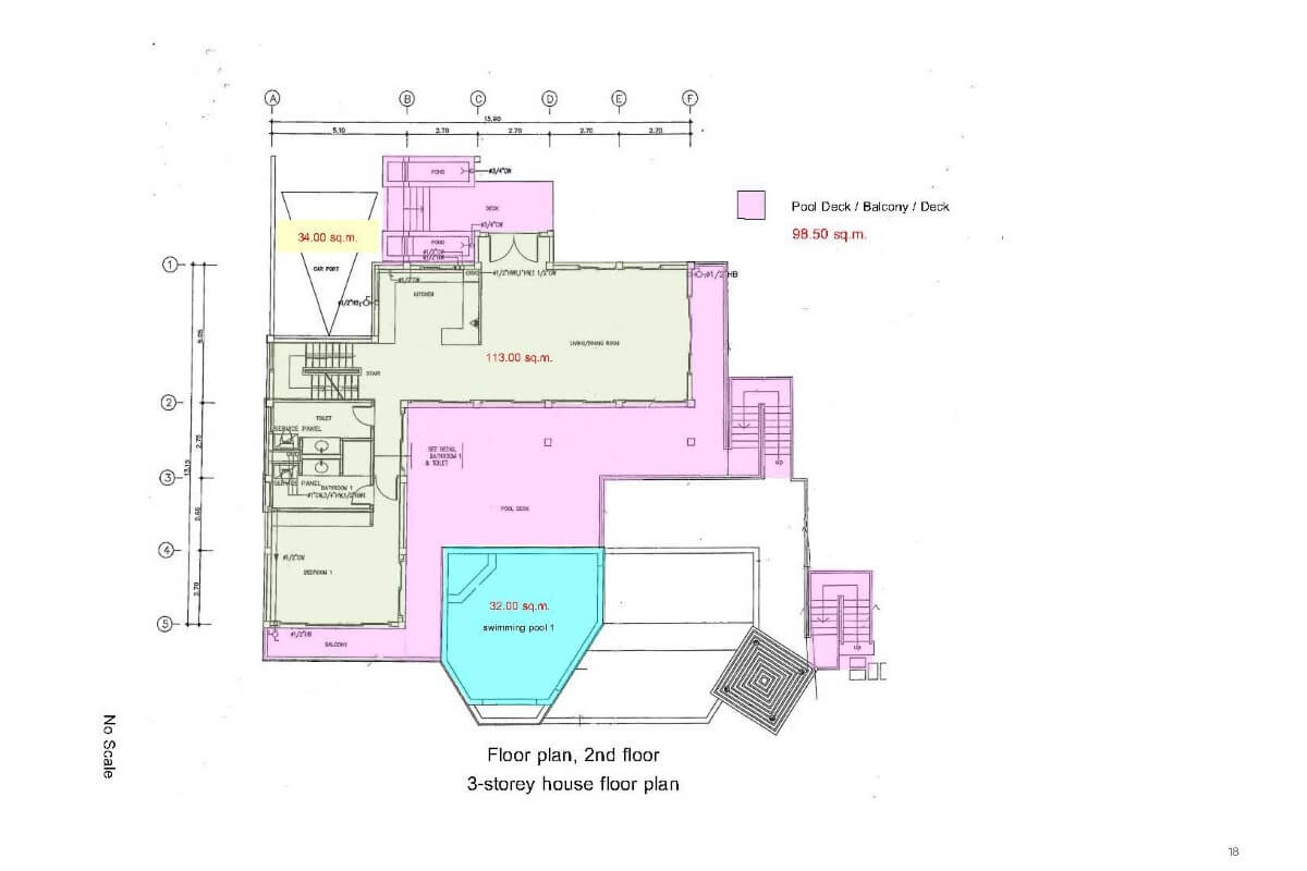
Outdoor areas are arranged across multiple tiers, reflecting the natural slope of the plot. The upper level features a 32 sqm swimming pool bordered by a 98.5 sqm balcony and terrace extending along two sides. Below, a second 40 sqm pool is set beside a 27 sqm pool deck, creating a distinctive dual-pool layout. The upper pool overlooks the lower pool, giving the property a layered outdoor design framed by surrounding greenery.
A covered parking area of approximately 34 sqm is integrated into the upper level. The estate itself spans approximately 32 rai and comprises 34 villas ranging from two to six bedrooms. Residents have access to shared facilities including a clubhouse with restaurant and café, a communal swimming pool, fitness centre, and tennis court, with professional management in place.
The location provides direct access to both Kata and Kata Noi beaches, including pedestrian access to Kata Noi Beach via a secure rear gate. Restaurants, shops, and coastal amenities are within walking or short driving distance. Kata Beach is less than ten minutes away, Patong approximately twenty-five minutes, and Phuket International Airport around one hour and forty minutes by car.
































































