Full Description
Completed to a very high standard in 2024, this unique contemporary designer villa is located in the highly sought-after area of Bonaire and offers panoramic coastal views. Built on an elevated 1,000 sqm plot, the property provides 277 sqm of living space with bespoke architectural details and luxury finishes.
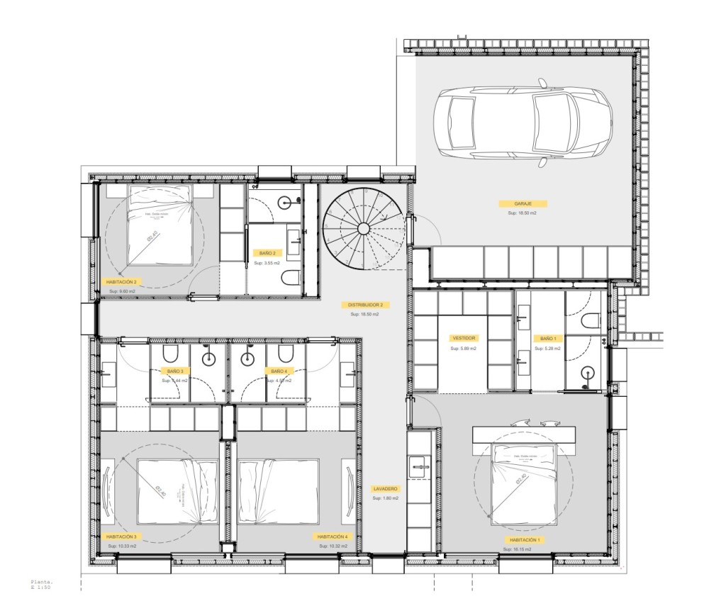
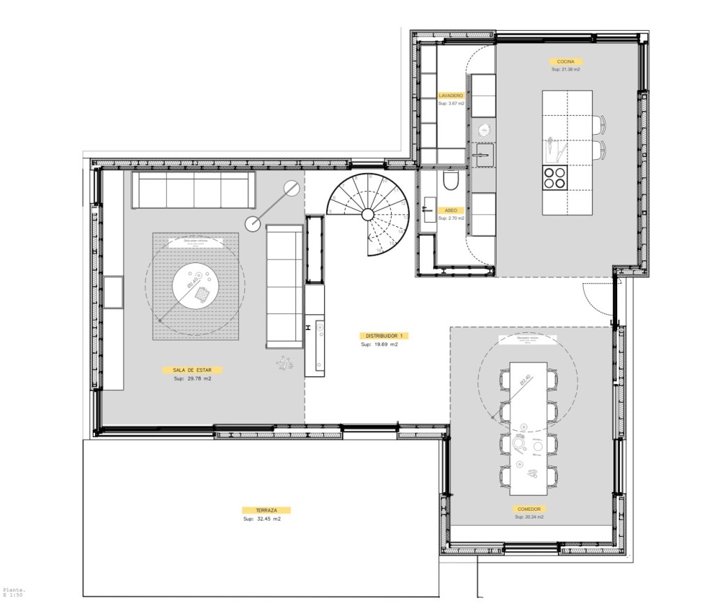
The villa is arranged over two floors. The ground floor features an open-plan living and dining space with a fully fitted kitchen and utility room. High ceilings and a designer circular stairway, vaulted from the ground floor to the first floor, define the central interior. A large terrace of 32 sqm extends from this level, providing an outdoor dining area with views across the valley and coastline.
Accommodation includes four bedrooms and four bathrooms. The master suite and guest bedrooms are designed with en-suite bathrooms, modern fittings, and direct access to terraces. The vaulted ceilings and natural stone elements throughout add character to the property’s modern style.
The outdoor areas include a private saltwater infinity pool and landscaped gardens. Large terraces provide space for entertaining, complemented by an integrated log burner for cooler evenings.
Specifications feature underfloor heating, reverse-cycle air conditioning, double-glazed windows, electric shutters, tinted glass, alarm system, and home automation. Interior fittings include Italian Lualdi designer doors and high-quality fixtures throughout.
A spacious double garage provides secure parking, with electric gates ensuring privacy and security.
Bonaire is recognised as one of the most exclusive residential neighbourhoods in northern Mallorca, offering peace and privacy alongside quick access to beaches, the marina and Alcúdia’s historic old town. Golf courses and Formentor are also within easy reach.













 
									 
									 
									 
									 
									 
									















































