Full Description
Four-bedroom sea view villas at Valentine Village Phase 3 in Plai Laem, Koh Samui combine elevated positioning, panoramic ocean views, and contemporary architecture to create one of the development’s most exclusive property types. Each villa spans 387 sqm over two floors, offering an exceptional standard of design and space suited to high-end buyers and investors seeking luxury coastal living with strong rental performance.
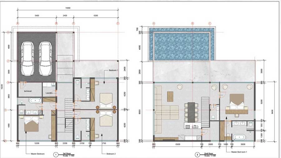
The layout is arranged across two levels. The ground floor includes an entrance hall, three bedrooms, four bathrooms, a laundry area, and a technical room, with a combined area of around 154 sqm. The upper floor features a large 66 sqm open-plan living, dining, and kitchen area, a second master suite with walk-in closet and en-suite bathroom, and an additional guest bathroom. This level connects directly to a 29 sqm infinity-edge swimming pool and 46 sqm front balcony, positioned to maximise sea and island views. Parking covers approximately 40 sqm at the entrance.
Each property is constructed with premium materials and includes high-quality finishes throughout. Full air conditioning, modern lighting, and premium plumbing installations are provided as standard. Expansive glass panels allow natural light to fill the interiors, while the open-plan configuration enhances the flow between indoor and outdoor areas. The infinity pool creates a seamless connection to the horizon, reinforcing the sense of exclusivity that defines this collection of villas.
The Valentine Village sea view villas are designed for families, long-term residents, and rental investors alike. Their larger size and elevated setting attract premium guests seeking private, high-quality accommodation. The 4-bedroom format ensures year-round rental appeal across different segments — from families and groups of friends to corporate stays — supporting strong occupancy and nightly rates.
Residents benefit from full access to Valentine Village’s resort-style infrastructure. The development includes a café-restaurant, communal pool, children’s playground, landscaped gardens, and a professional management office. Services such as 24-hour security, maintenance, and guest management are handled on-site, making ownership efficient for investors and convenient for residents.
Located in Plai Laem on Koh Samui’s northeast coast, the development is surrounded by five-star hotels including the Ritz-Carlton and Kimpton. Big Buddha Temple is four minutes away, while Samui International Airport and Central Festival Mall can be reached in around ten minutes. Chaweng Beach and Fisherman’s Village are also within a short drive, offering access to shopping, dining, and entertainment while retaining a sense of privacy and calm.
Foreign investors are offered a secure 30-year registered leasehold structure, providing legal protection and clarity of ownership. The project benefits from the developer’s proven record of completed and managed phases, supported by over 15 years of hospitality and construction experience in Koh Samui.
The Valentine Village Phase 3 sea view villas represent the top tier of the development, combining architectural design, premium amenities, and commanding views to deliver both lifestyle value and investment strength. With limited units available and high demand for ocean-view properties in Plai Laem, these villas offer a rare opportunity to secure a high-performing asset in one of Koh Samui’s most prestigious coastal communities.
























































