Full Description
Renovated Apartment in Santa Catalina
This modern apartment is located in Santa Catalina, one of Palma’s most vibrant districts, known for its restaurants, cafés and market. Fully rebuilt in 2024, it now offers first occupancy with a focus on comfort, technology and quality finishes.
Layout and Living Areas
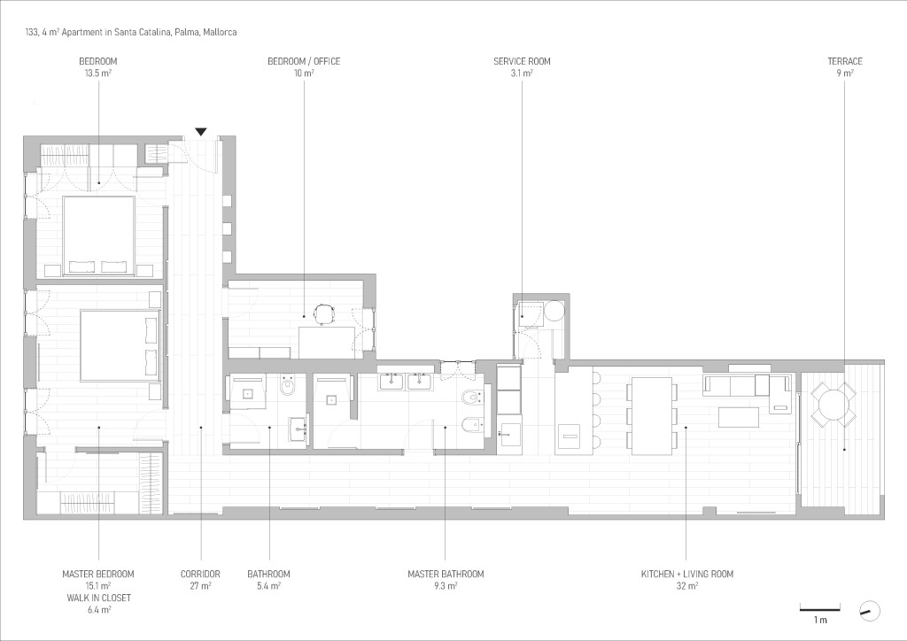
The apartment has a build area of 145 sqm and is situated on the third floor of a building originally constructed in 1975 and extensively modernised. It includes three bedrooms and two bathrooms. The living room is connected to an open-plan kitchen with island, induction stove and built-in water filtration system. A 9 sqm terrace provides views of the Verge del Carme church.
Interior Design and Materials
Attention to detail is reflected in the use of natural materials such as Silvestre Claro granite countertops and Austrian oak floors. The master suite has a walk-in closet, while both bathrooms are fitted with rain showers, double washbasins and branded fittings from Geberit, Villeroy & Boch, Herzbach and Grohe. Features such as fog-free mirrors and underfloor heating in the bathrooms add comfort.
Technology and Comfort
The apartment is equipped with a home automation system, Forester ceiling speakers and a home cinema setup. Double glazing, new insulation and air conditioning (hot/cold) provide efficiency for year-round use.
Additional Features
-
Sound and thermal insulation tailored to Mallorca’s climate
-
New electrical, water and HVAC systems throughout
-
Garage parking available for rent nearby
-
Lift access within the building
Location in Palma
Santa Catalina offers central city living close to Jaime III shopping street, the Santa Catalina Market and the Paseo Marítimo. The Palma Sport and Tennis Club is within walking distance, and the airport can be reached in around 15 minutes by car.




































